Trilocale in vendita

Piossasco, Via Palestro
€ 83.000
3 locali 3 locali
70 Mq 70 Mq
1 bagno 1 bagno

Trilocale in vendita

Piossasco, Via Palestro

Descrizione annuncio

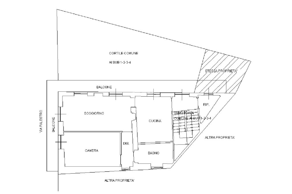
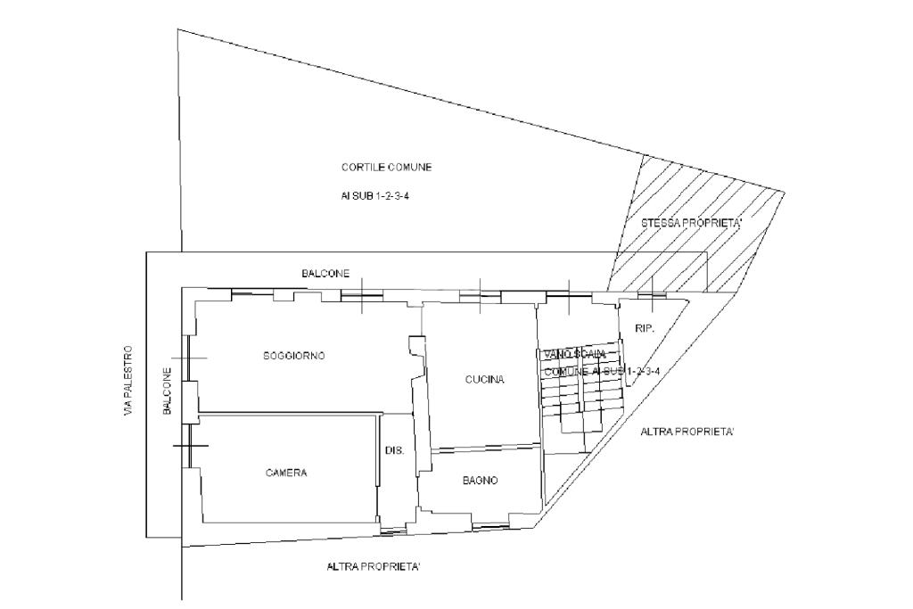
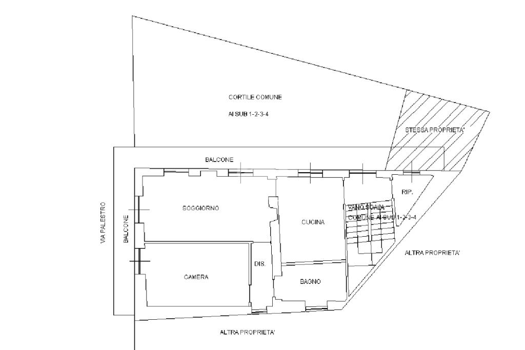
Appartamento situato al primo piano in un contesto di poche unità abitative.

Internamente è così composto: ingresso in cucina abitabile, soggiorno con accesso al balcone angolare, camera matrimoniale e bagno con doccia.

Angolare e luminoso, con affaccio diretto sulla piazza del centro storico.

Il locale caldaia, dotato di riscaldamento autonomo, può essere facilmente trasformato in un pratico ripostiglio.

Tutti i servizi sono comodamente raggiungibili a piedi.

Perfetto per single o coppie che desiderano vivere in un ambiente accogliente e indipendente, senza rinunciare alla comodità dei servizi del centro storico.

Le piastrelle del balcone sono state sostituite completamente cinque anni, mentre il tetto e le grondaie sono stati revisionati di recente.

Ammobiliato.

Mostra tutto

Nelle vicinanze

Trasporto pubblico Trasporto pubblico
Piossasco (Portici)
Piossasco (Portici)
120 m
Piossasco (v. Susa/v. Cavour)
Piossasco (v. Susa/v. Cavour)
230 m
Ricariche auto elettriche Ricariche auto elettriche
Municipio di Piossasco | EnelX
240 m
Piossasco Pellerino | EnelX
530 m
EnelX FAST COOP Piossasco
980 m
Mercatò Piossasco | EnelX
1,4 Km
Scuole Scuole
Scuole
450 m
Farmacia Farmacia
Farmacia
140 m
Farmacia Comunale 19
440 m
Ospedali Ospedali
Casa di cura Villa Serena
650 m
Supermercati Supermercati
Supermercati
790 m
Ipercoop
1,0 Km
Aldi
1,3 Km
Tigotà
1,3 Km
mercatò
1,5 Km
Negozi Negozi
Negozi
830 m
Bar Bar
Bar
770 m
AperiVito
1,2 Km
Ristoranti Ristoranti
Ristoranti
190 m
Il Mulino
470 m
osteria 68
1,2 Km
Ai Nove Merli
1,5 Km
agriturismo Ostelia
1,5 Km
Mostra tutto

Caratteristiche

Rif.:
61154293
Piano:
1 di 2 (ultimo Piano)
Balconi:
1
Camere da letto:
1
Arredamento:
Parziale
Condizionamento:
Assente
Mostra tutto
Prezzo Prezzo
€ 83.000
Rata mutuo Rata mutuo
€ 392 / mese
Spese annue Spese annue
€ 200
Proponi il tuo prezzoProponi il tuo prezzo

Classe Energetica

F
F
F
F
F
F
F
F
F
EP globale non rinnovabile:
128.89 kW h/m² anno
EP globale rinnovabile:
0.80 kW h/m² anno
EP invernale del fabbricato:
EP estiva del fabbricato:
Anno di costruzione:
1960
Riscaldamento:
Autonomo
Tipo impianto:
A radiatori
Tipo alimentazione:
Metano

Ti interessa visionare l'immobile?

Fissa un appuntamento  Fissa un appuntamento

Richiedi informazioni

Clicca su Leggi per aprire l'informativa
* Questi campi sono obbligatori

Calcola il tuo mutuo

Semplice e senza impegno
Anticipo

( % )
Mutuo

( % )

pochi semplici passi

inserisci i tuoi dati
Questionario completato
Grazie per aver richiesto un appuntamento senza impegno con un nostro Consulente del Credito e Assicurativo.

Hai inserito correttamente tutti i dati necessari e a breve riceverai una e-mail con un link da convalidare per inviare i tuoi dati.
Affiliato
Studio San Giorgio Srl
Via Pinerolo, 16/5 10045 Piossasco (TO)

Il nostro staff


  • Alessia Vagliengo
    Affiliata

  • Ylenia Romagnini
    Collaboratrice

  • Eliana Goffredo
    Collaboratrice

  • Martina Manca
    Coordinatrice

  • Stefania Rizzuti
    Collaboratrice
Via Pinerolo, 16/5 10045 Piossasco (TO)
Zona: Piossasco
Mostra su mappa
Orari: Da Lunedì a Venerdì 09:00 12:30 14:30 19:45 Sabato 09:00 12:30 / 14:30 19:00
Affiliato
Studio San Giorgio Srl
Via Pinerolo, 16/5 10045 Piossasco (TO)

2025 Tecnocasa Franchising S.p.A. - P. IVA 08365160152 - Via Monte Bianco 60/A 20089 Rozzano (MI). Ogni agenzia ha un proprio titolare ed è autonoma. Privacy policy | Policy utilizzo | Cookie policy